LOADING

535 Bayfield Street Unit# 20 Barrie, Ontario L4M 4Z9

610 sqft
Central Air Conditioning Forced Air Acreage

$30 MonthlyInsurance, Other, See Remarks

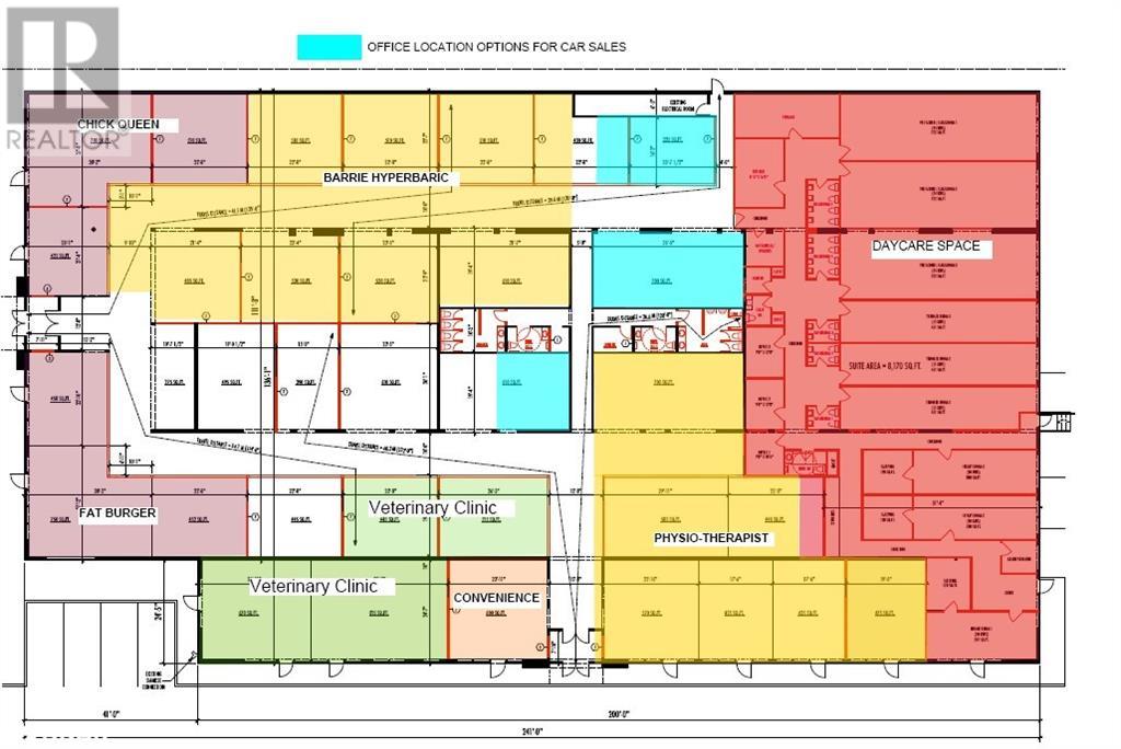
High Traffic Retail/Office Mall Style Space North Of Georgian Mall, Beside Tim Horton's. Only INTERIOR Mall spaces remaining with common access from the front and side entrances. Rental Rates Vary, Up To $30/Sf Depending On Size And Location. Plus Tmi Includes Utilities And Common Area Maintenance Of Common Area Washrooms And Hallways. Ideal Space For Any Kind Of Office Or Retail Use. Space Has Been Leased To 2 Fast Food Restaurants Fronting Onto Bayfield And Convenience And Physio. Located Adjacent To Tim Horton's With Hundreds Of Cars A Day Through The Lot. See Attached Plan. Any Number Of Units Can Be Combined To Accommodate Tenant Needs Up To About 6,000 Sf. (id:45412)

Property Details

MLS® Number 40355991
Property Type Retail
AmenitiesNearBy Public Transit, Schools, Shopping
CommunityFeatures High Traffic Area, Community Centre

Building

BasementType None
CoolingType Central Air Conditioning
ExteriorFinish Stucco
HeatingFuel Natural Gas
HeatingType Forced Air
StoriesTotal 1
SizeExterior 610.0000
SizeInterior 610 Sqft
UtilityWater Municipal Water

Land

Acreage Yes
LandAmenities Public Transit, Schools, Shopping
Sewer Sanitary Sewer, Storm Sewer
SizeFrontage 250 Ft
SizeIrregular 3.4
SizeTotal 3.4 Ac|2 - 4.99 Acres
SizeTotalText 3.4 Ac|2 - 4.99 Acres
ZoningDescription C4

https://www.realtor.ca/real-estate/25117486/535-bayfield-street-unit-20-barrie

Interested?

Contact us for more information


Catherine Lowe
Broker of Record


Ed Lowe Limited Brokerage
47 Mills Rd. Unit: 6
Barrie, Ontario L4N 6H4

Your Favourites

 

No Favourites Found

 

Contact Us Today